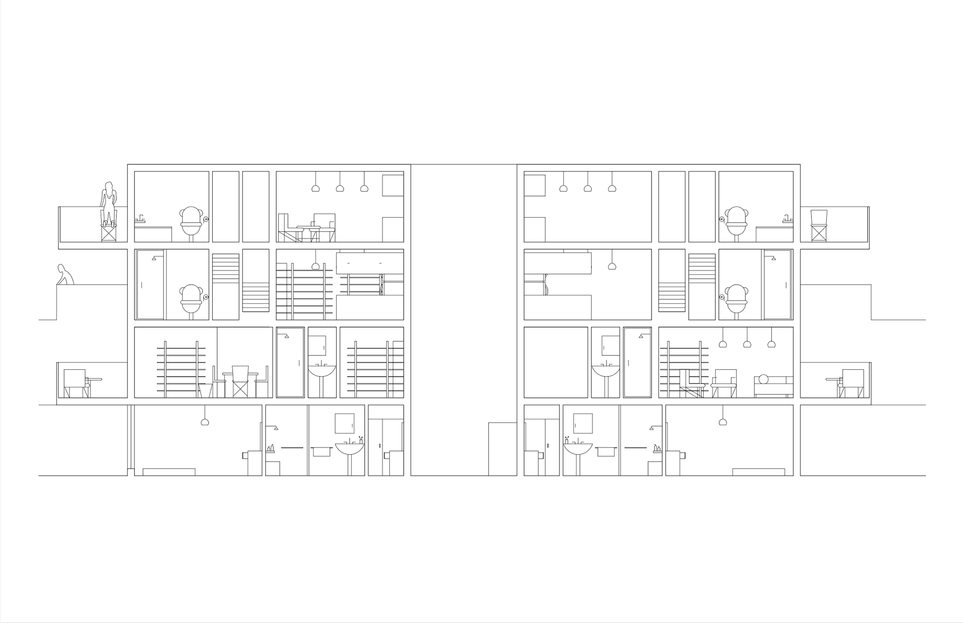
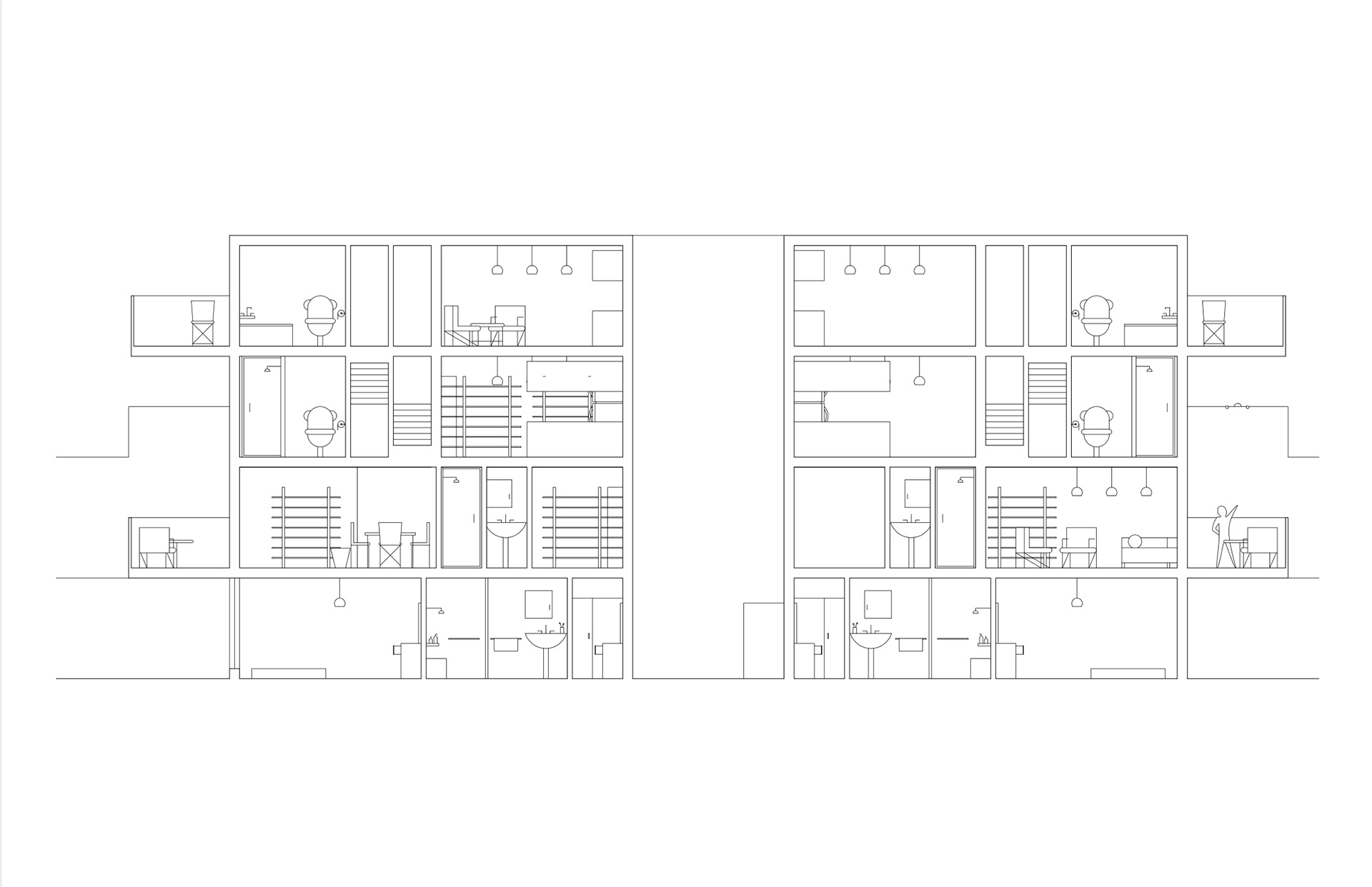
An exciting chapter in my studies, this project was inspired by Le Corbusier's ideas of modularity and repetition, as exemplified in designs such as the Maison Domino. I attempted to design a similar module that could be repeated infinitely in vertical or horizontal directions.






One of the highlights of this project is the attention to detail in my drawings. All of the drawings are my own original work, without the use of 'CAD Blocks' and entirely my own design. This applies to all of the architectural drawings you'll find on this site.